Az Önök szakértő partnere ügyfélspecifikus szűréstechnikai megoldásokban

Esettanulmányok: Környezetbarát és hatékony vízkezelés ultratiszta víz készítéséhez

Esettanulmányok: Környezetbarát és hatékony vízkezelés ultratiszta víz készítéséhez

Ügyfelünknek a tükörgyártáshoz óránként kb. 300 liter tökéletesen előkészített, alacsony vezetőképességű, 4 bar nyomású ultratiszta vízre van szüksége. Ezenkívül minden egyes gyártásindításhoz kb. 2000 liter azonnal rendelkezésre álló azonos tisztaságú vízre van szükség, és az ügyfél hosszú távú és hatékony megoldást keresett a szokásos ioncserélők helyett. Az ioncserélőkhöz szükséges műgyantát egyre nehezebb beszerezni, és az árak folyamatosan emelkednek.
Így tehát világos volt a feladat az IMEX Filtertechnika számára: Nagy mennyiségű ultratiszta víz előkészítése nem folyamatos igénnyel, hosszútávon kiszámítható költségek és üzembiztonság mellett.

Esettanulmányok: Környezetbarát és hatékony vízkezelés ultratiszta víz készítéséhez

Az ügyfél elemzésében abból indult ki, hogy az új berendezésnek legalább 500 liter/óra kapacitással kell rendelkeznie. Az IMEX szakértői csapata egy 2019-ben telepített kisebb kísérleti projekt során szerzett tapasztalataira is támaszkodva tudott testre szabott megoldást kidolgozni. A kisebb, óránként 80 literes kapacitású projekt több mint egy év elteltével, üzembe helyezése óta teljesen baktériummentesen működik.

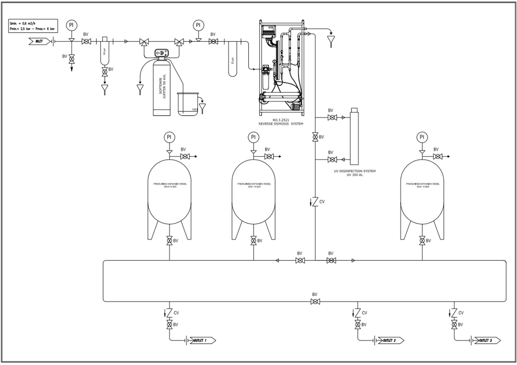
Ennek alapján sikeresen kombináltak három rendszert egy önálló berendezésben, egyrészt a soproni városi vezetékes víz a kívánt tisztasági fokra hozása, másrészt a 2000 literes indítási kapacitás biztosítása céljából.
A rendszer első eleme egy vízlágyító berendezés. Ezután egy fordított ozmózisos víztisztító berendezés következik, amely óránként 300 liter ultratiszta víz előkészítésére alkalmas, egy UV csírátlanító berendezéssel és 4 puffertartállyal, ami így összességében 2000 liter összkapacitást jelent.

Esettanulmányok: Környezetbarát és hatékony vízkezelés ultratiszta víz készítéséhez
Fordított ozmózis: környezetbarát, megbízható és kiszámítható

A fordított ozmózis technológia a rendkívül finom szűréshez hasonlítható, ezért hiperszűrésnek is nevezik. Ez az eljárás egy a természetben alapvető jelentőségű folyamat megfordításának elvén működik: ez az ozmózis. Ez két, félig áteresztő membránnal elválasztott folyadék koncentrációjának kiegyenlítését jelenti.
A fordított ozmózis (angolul: reverse osmose) során a vizet egy szintetikus, félig áteresztő membránhoz nyomják, amely a vízmolekulák számára áteresztő, de a nyersvízben lévő szennyeződések, pl. keménységképzők, sók, mész, nitrát, növényvédőszerek, hormonok és gyógyszerek maradványai, mikroorganizmusok stb. számára nem. A magas ionkoncentrációjú oldalon (vezetékes víz, nyersvíz) meglévő nyomás a tiszta vízmolekulákat az alacsonyabb koncentrációjú tiszta víz oldalára kényszeríti. A nyersvíz oldalon a működés során a visszatartott anyagok nagy koncentrációja jön létre, ezt folyamatosan öblíteni kell, és szennyvízként el kell vezetni. 

A vízkezelés e módja amellett, hogy környezetkímélő, természetesen világosan átlátható költségekkel jár. A rendszer beszerzési és karbantartási költsége hosszútávon kiszámítható. Az ioncserélők költségei ezzel szemben az utóbbi években egyre nehezebben kiszámíthatók, mivel egyrészt a műgyanta ára már literenként 4 euróra emelkedett, másrészt a nyersanyaghiány bizonytalan rendelkezésre álláshoz és további áremelkedéshez vezethet.

Amortizáció egy éven belül

Az ügyfél részéről megerősítést nyert, hogy mindössze 6 hét sikeres üzem után már havi mintegy 1600 € megtakarítás látható a műgyanta költségekben. Ezzel a berendezés beszerzési költsége már az első éven belül amortizálódott.  A befektetés megtérülése < 1 év

Adatok és tények a vízkezelő berendezésről

Az IMEX Filtertechnika az összes releváns adatot és vizsgálati eredményt egy megoldási javaslatba foglalta, amely tartalmazza a soproni vezetékes víz átfogó kezelését és a megrendelői igényeket.
Megoldásként egy teljesen automatikus vízkezelő berendezést terveztünk, amely a következő elemekből áll:

  • 90 µm-es szűrés visszaöblítéses szűrővel
  • Vízlágyítás 50 AVL használatával
  • 25 µm-es szűrés gyertyás szűrővel
  • 10 µm-es szűrés aktív szén szűrővel (az RO berendezésre építve)
  • 1 µm-es szűrés gyertyás szűrővel (az RO berendezésre építve)
  • Ozmózisos berendezés 
  • UV sterilizálás 
  • 4 tárolótartál

A berendezés működési elvének sematikus ábrázolása

Esettanulmányok: Környezetbarát és hatékony vízkezelés ultratiszta víz készítéséhez
Back to Top
Close
Close
Ajánlatkérés